中国教育集团控股有限公司关于广州松田职业学院新档案室密集架采购项目公开询价邀请函

发布日期:2020-07-21


中国教育集团控股有限公司

关于广州松田职业学院新档案室密集架采购项目

                                      项目编号:B-XJ2020-8

                                      项目名称:中教广州松田职业学院新档案室密集架采购项目

一、询价邀请

中国教育集团控股有限公司(简称:中教集团)是一家专注于通过创新提供优质教育服务的教育集团。2017年香港联交所上市(股票代码839),在中国、澳大利亚及英国设有学校。学生来自全球近100个国家,在校生约180,000名。华教教育科技(江西)有限公司(简称:华教公司)作为中教集团内地唯一独资子公司全程承办此次项目。

一、项目说明

1. 项目编号:B-XJ2020-8

2. 项目名称:中教广州松田职业学院新档案室密集架采购项目

3. 数量及主要技术要求:详见《公开询价项目介绍》

4. 参与人资格标准:

1)参与人应具有独立法人资格,注册资金不少于人民币100万(含100万)的生产厂商或授权代理商。

2)参与人应具有提供设备和服务的资格能力

3)参与人应遵守中国的有关法律、法规和规章的规定。

4)参与人具有3年以上(包括3年)同类项目销售和良好的售后服务应用成功案例,近三年未发生重大安全或质量事故。

5)参与人须有良好的商业信誉和健全的财务制度。

6)参与人有依法缴纳税金和社会保障资金的良好记录。

5. 报价响应文件递交方式:密封报价并送到指定地点

6. 报价响应文件递交截止时间2020年727中午12点

7. 报价响应文件递交地点:广州市增城区朱村街朱村大道东432号广州大学松田学院资产管理与采购处办公室

联系人:罗老师;联系电话:020-82852717(节假日除外)上午8:00至12:00、下午14:30至16:30

二、参与人须知

1.参与本项目报价方,需缴纳磋商保证金8000元,如中选,则自动转为履约保证金;如落选,则自定选日一个月内无息退还。 转账凭证发送至sontan@aliyun.com。

单位名称:广州松田职业学院

转账账号:3602 0411 1920 0112 713

开户行:中国工商银行股份有限公司广州荔城支行

2.进校递交密封报价文件需提前1天填写校外进校人员疫情防控排查表(见附件),把进校人员信息填写完整后加盖公司印章并扫描电子版发送至该邮箱sontan@aliyun.com。

3. 所有货物均以人民币报价;

4. 报价响应文件3份,报价响应文件必须用A4幅面纸张打印,须由参与人填写并加盖公章(正本1份副本2份);

5. 报价响应文件用不退色墨水书写或打印,因字迹潦草或表达不清所引起的后果由参与人自负;

6. 报价响应文件及所有相关资料需同时进行密封处理,并在密封处加盖公章,未做密封处理及未加盖公章的视为无效报价;

7. 一个参与人只能提交一个报价响应文件。但如果参与人之间存在下列互为关联关系情形之一的,不得同时参加本项目报价:

(1) 法定代表人为同一人的两个及两个以上法人;

(2) 母公司、直接或间接持股50%及以上的被投资公司;

(3) 均为同一家母公司直接或间接持股50%及以上的被投资公司。

三、售后服务要求

1. 免费保修期;

2. 应急维修时间安排;

3. 培训计划及人员安排;

4. 维修地点、地址、联系电话及联系人员;

5. 维修服务收费标准;

6. 主要零配件及易耗品价格;

7. 制造商的技术支持;

四、确定成交参与人标准及原则:

所投设备符合采购需求、质量和服务要求,经过磋商所报价格为合理价格的参与人为成交参与人,最低报价不作为成交的保证。


二、公开询价项目介绍

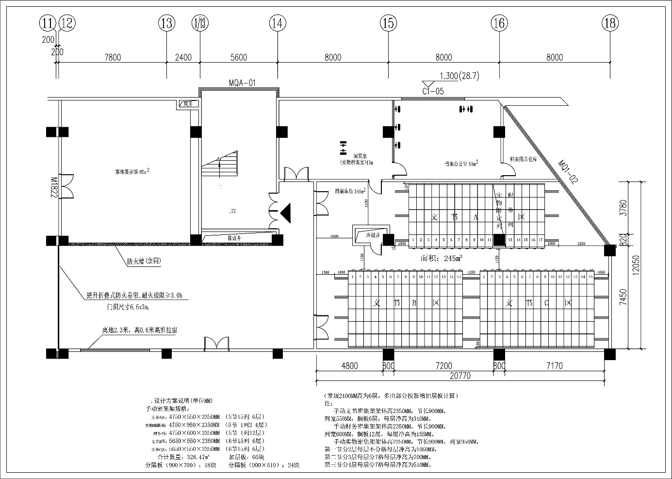
广州松田职业学院新档案室密集架布置安装方案

一、 库房整体布局

根据新档案库房的平面尺寸及库内建筑的情况,拟将库房分为两个区域(如下图),靠北面即图纸的上半区为A区,南面即图纸中库房的下半区为BC两个区域,南北两区之间的主通道不小于1.2米。

)档案密集架布置

1、密集架的组成及数量

一组柜:是指两个具有六个隔层的柜子背靠背组成。

一列柜:由一个摇动装置控制的若干组柜子称为一列。

库房分为两个密集架区,两区分别安装密集架17列和30列,共计柜数(双面)260组,其中设置实物档案与财会档案柜。

要求能够最大限度地利用档案库房空间,上图只作为示例,实际设计时与中标单位再作商讨,会有小的改动。

2、密集架安装及设备规格和材质要求

1)在A区包柱固定列的左侧,以及B、CD三个区安装厨式密集架。在A区包柱固定列的右侧,安装箱式密集架。

2)架顶应设防尘装置,列与列之间应装有20mm厚特种抗老化橡塑磁性密封条,各区域两端列的门面应装有带锁柜门,除固定列外,所有移动列分别装有锁具和制动装置,每组密集柜闭合后可用总锁锁住,形成一个封闭的整体,各列移开后可单独制动,确保人员安全,底部应设防鼠、防倾倒装置。

3在库房铺设地板砖前,需要预埋档案密集架轨道(保证导轨与地面平齐)。

4)传动机构应转动灵活、平稳、不得有失灵现象;在全负载的情况下,各列密集架应运动自如,不得有阻滞现象。摇手柄在负载情况下保持轻便、灵活、平稳。

5)材料中的冷轧刚板,均选用优质冷轧钢板,并经过防锈等国标规定的工艺处理,包括导轨等其它金属构件在内,确保不出现生锈及其它质量问题。密封、防震等材料须质量优良。

 

二、备注

        报价单位以上述方案为参考,报价中需注明密集架的尺寸规格,明确导轨、传动机构、底盘、架体等具体参数以及明确工艺要求,如材料规格、技术参数、采用的标准、板的厚度等。




中国教育集团控股有限公司

                                                                           关于广州松田职业学院新档案室密集架采购项目

                                         参与人名称(公司全称):XXXX

                                         参与人授权代表:XXXX

此封面应作为报价响应文件封面


1、询价响应函

致:华教教育科技(江西)有限公司

根据贵方为 项目的公开询价邀请(编号): ,本签字代表(全名、职务)正式授权并代表我方(参与人公司名称、地址)提交下述文件正本1份和副本2份。

(1) 报价一览表

(2) 分项报价表

   (3) 参与人资格证明文件

(4) 质保期和售后服务承诺书

据此函,签字代表宣布同意如下:

1.所附详细报价表中规定的应提供和交付的货物及服务报价总价(国内现场交货价)为人民币 ,即 (中文表述)。 

2.参与人已详细审查全部公开询价文件,包括修改文件(如有的话)和有关附件,将自行承担因对全部询价响应文件理解不正确或误解而产生的相应后果。

3.参与人保证遵守公开询价文件的全部规定,参与人所提交的材料中所含的信息均为真实、准确、完整,且不具有任何误导性。

4.参与人将按公开询价文件的规定履行合同责任和义务。

5.参与人同意提供按照采购单位可能要求的与其公开询价有关的一切数据或资料,完全理解贵方不一定要接受最低的报价或收到的任何询价响应文件。

6.与本此公开询价有关的一切正式往来通讯请寄:

地址: 邮编:

电话: 传真:

参与人授权代表签字:

参与人(公司全称并加盖公章):

期:



2、报价一览表

参与人:(公司全称并加盖公章) 项目编号:B-XJ2020-8

货币单位:

序号

总报价

报价声明

交货期

备注


                                                                          参与人授权代表(签字或盖章):

期:





3、分项报价一览表

参与人:(公司全称并加盖公章) 项目编号:B-XJ2020-8

货币单位:

序号

设备名称

品牌型号

具体技术参数

单位

数量

单价(元)

总价(元)

备注

1

2

3

4

5

6

7

8

9

10

合 计


注:1.如果按单价计算的结果与总价不一致,以单价为准修正总价。

2.如果不提供详细参数和报价将视为没有实质性响应公开询价文件。


                                                                          参与人授权代表(签字或盖章):

期:

4、参与人的资格证明文件


4-1关于资格的声明函

华教教育科技(江西)有限公司:

关于贵方 (项目编号)公开询价邀请,本签字人愿意参加本次报价,提供公开询价文件中规定的 货物,并证明提交的下列文件和说明是准确的和真实的。

1.本签字人确认资格文件中的说明以及公开询价文件中所有提交的文件和材料是真实的、准确的。

2.我方的资格声明正本1份,副本2份,随报价响应文件一同递交。


参与人(公司全称并加盖公章):

址:

编:

话或传 真:

参与人授权代表:


4-2法定代表人授权书

华教教育科技(江西)有限公司

(参与人公司全称)法定代表人(姓 名)、 (身份证号)授权 为参与人代表,代表本公司参加贵司组织的 项目(项目编号 )公开询价活动,全权代表本公司处理报价过程的一切事宜,包括但不限于:磋商、谈判、签约等。参与人代表在磋商、谈判、签约过程中所签署的一切文件和处理与之有关的一切事务,本公司均予以认可并对此承担责任。参与人授权代表无转委权。特此授权。

本授权书自出具之日起生效。


法定代表人签

参与人(公章):

期:

:

参与人授权代表姓名:(签字)

务:

详细通讯地址:

真:

话:

附:被授权人身份证件

4-3 企业法人营业执照(复印件并加盖公章)

华教教育科技(江西)有限公司:

现附上由 (签发机关名称)签发的我方法人营业执照复印件,该执照业经年检,真实有效。








人(全称并加盖公章):

参与人授权代表

期:


5.质保期和售后服务承诺书

参与人根据公开询价文件中对售后服务的要求,结合自身实际情况进行承诺(含产品质量保障体系等)、交货期承诺等

承诺如下:














人(公司全称并加盖公章):

                                                                 参与人授权代表:

                                                         日 期:

附件:校外进校人员疫情防控排查表

校外进校人员疫情防控排查表

单位:        填报人:       联系电话:               进校时间:     年   月   日

序号

姓名

身份证号

居住地址

近期曾到     湖北省

近期有亲友从湖北或以外地区来访(注明地区)

14天内去向          (注明地区)

目前身体
健康状况

1

是  否


2

是   否


3

是   否


4

是   否


5

是   否


6

是   否


7

是   否


8

是   否


注:1.人员进入校园须经门卫检测体温,体温正常并经校方许可方可进入施工场所。


官方微信